石灰粉體投加技術
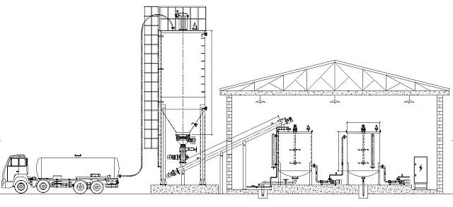
水處理系統酸性廢水處理過程中,中和調節PH值過程時常用石灰制乳后進行投加。其投加過程要求連續性強,采用人工投加勞動強度大,為適應市場需要,現向環保水處理市場提供具有設備操作簡單、連續投加、投加量穩定的石灰乳投加裝置。石灰(粉體)投加設備是一種將生石灰粉劑儲存、配置并投加的設備。石灰料倉與定量喂料系統、自卸密封罐車、石灰乳攪拌罐及石灰乳輸送泵等組成一套完整的石灰石粉倉系統。
工作原理:石灰粉劑在石灰倉內貯存,均勻下料至喂料機,螺旋輸送給料機將石灰粉劑送入溶解桶進行溶解,溶解桶攪拌機對溶液進行充分攪勻,制備后的溶液由螺桿泵送至用戶使用點。
產品特點:
1、基本進出能力:粉料倉的貯存能力從5m3至150m3;石灰粉的制備能力從5~10000kg/h;石灰乳液(石灰乳)的制備能力從100~100000kg/h(濃度10%)。
2、連續式全自動配制,粉料給料機帶調速裝置,給料量調節范圍廣,石灰乳液配制濃度精度高。
3、可選先進的振打器或破拱器,可以使石灰下料更順暢。
4、采用先進的容積式生石灰消化裝置,可以通過合理的調整進料量和進水量的關系,調整最合適的消化溫度,使生石灰消化得更加完全,消化效率更高。
5、石灰管路閥門采用特殊管閥,無堵塞,無泄漏,操作控制方便,尤其適用于含顆粒物料的過程輸送。
6、位計采用進口液位測量儀器,精確控制。
7、電控系統采用先進自動控制系統,設備高效自動運轉。




